72 CHATEAUGUAY STREET
72 CHATEAUGUAY STREET
72 CHATEAUGUAY STREET
72 CHATEAUGUAY STREET
SEE ALL PHOTOS
72 CHATEAUGUAY STREET
72 CHATEAUGUAY STREET
72 CHATEAUGUAY STREET
72 CHATEAUGUAY STREET
 Courtesy of LPT REALTY 
For Sale

72 CHATEAUGUAY STREET

72 CHATEAUGUAY STREET, Russell, Ontario K0A1W0, Canada

$754,800 CAD
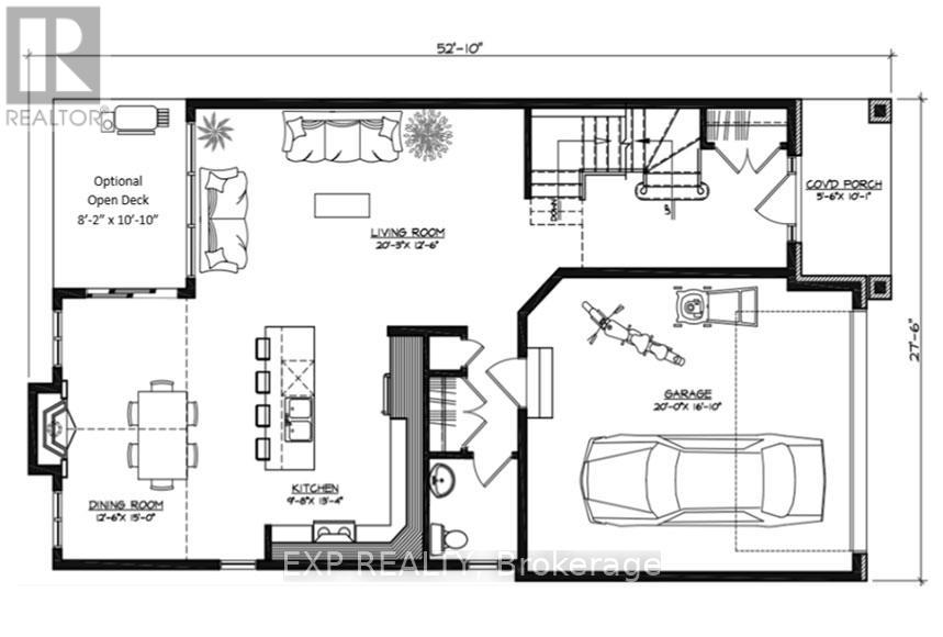
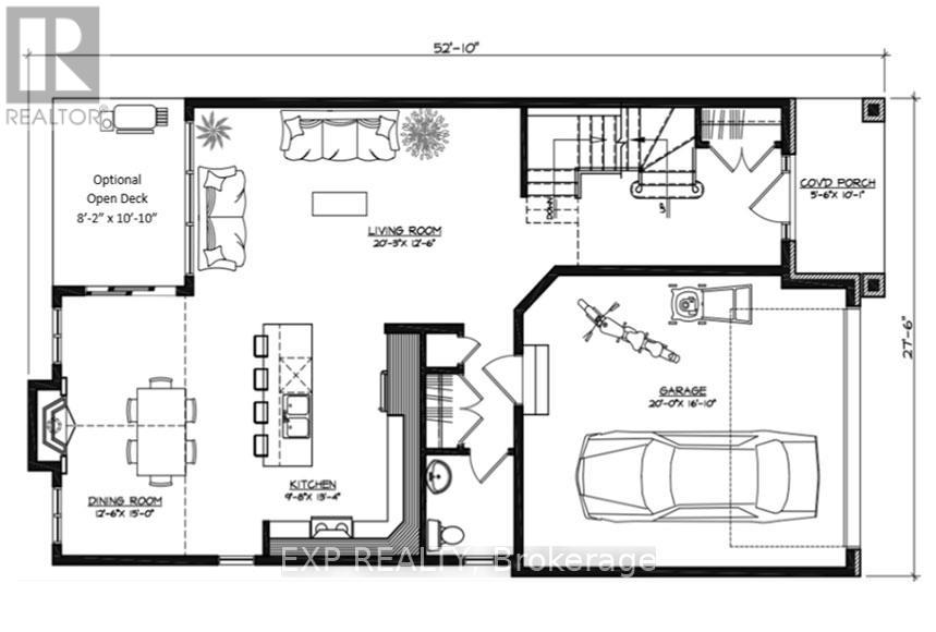
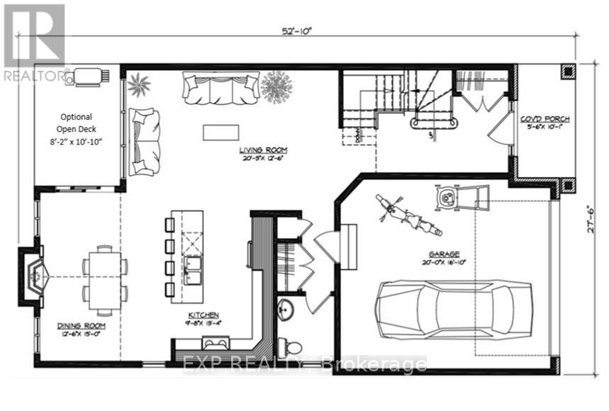
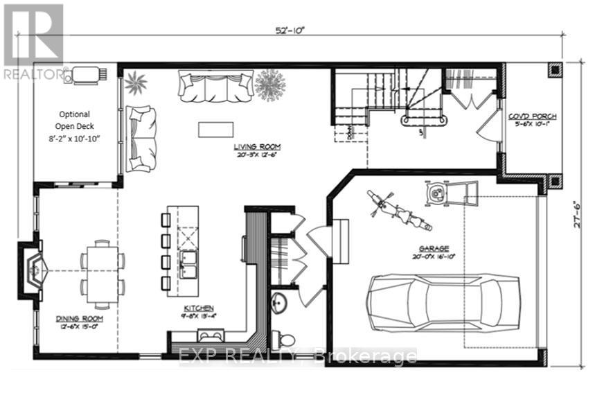
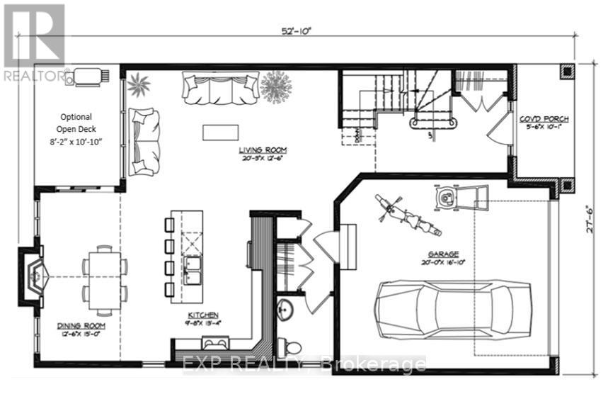
OPEN HOUSE Sunday February 22nd 2:00pm - 4:00pm AT 63 Chateauguay Street, Embrun Introducing the Modern Sofia, a thoughtfully designed 2-storey home offering 1,703 square feet of comfortable and efficient living space. With 3 bedrooms, 2.5 bathrooms, and a spacious 2-car garage, this home is ideal for modern families or first-time buyers looking for a smart, stylish layout. The main floor welcomes you with a bright living room that flows into a side-set kitchen and dining area, creating a defined yet connected living space. Just off the garage, you'll find a convenient powder room perfect for guests and day-to-day practicality. Upstairs, the primary suite offers a peaceful escape, complete with a private ensuite bathroom. The Modern Sofia blends functional living with clean, contemporary design for a space you'll love to come home to. Constructed by Leclair Homes, a trusted family-owned builder known for exceeding Canadian Builders Standards. Specializing in custom homes, two-storeys, bungalows, semi-detached, and now offering fully legal secondary dwellings with rental potential in mind, Leclair Homes brings detail-driven craftsmanship and long-term value to every project. (id:41202)

3
beds

3
baths

RJ McComber

RJ McComber

Meghan Courtemanche

Meghan Courtemanche

Features & Amenities

Interior

  • total bedrooms3
  • Total bathrooms3
  • APPLIANCES Water Heater - Tankless

Area & Lot

  • Status For Sale
  • MLS® IDX12272239
  • TypeResidential
  • NeighborhoodOttawa

Exterior

  • STORIES2
  • water SourceMunicipal water
  • HEAT TYPEForced air, Natural gas
  • AIR CONDITIONINGNone
  • sewerSanitary sewer

Financial

  • Sales Price$754,800 CAD
image

Schedule a Showing

We would love to show you our beautiful property. Please select your preferred date and time below. An agent will be in touch shortly to confirm your appointment.

Schedule a Showing

We would love to show you our beautiful property. Please select your preferred date and time below. An agent will be in touch shortly to confirm your appointment.

Thank you for your interest in 72 CHATEAUGUAY STREET, Russell, Ontario K0A1W0, Canada. We are reviewing your request and will be in touch shortly!

Mortgage Calculator

Estimate your monthly mortgage payment, including the principal and interest, property taxes, and HOA. Adjust the values to generate a more accurate rate.

All estimates are provided for informational purposes only. Actual amounts may vary.
$0,000 Your Payment 20 15 65
$0,000 Your Payment

Ottawa

Explore

Work With Us

We are here to guide you through seamless selling, buying, or investing experiences. Let's collaborate to achieve your real estate goals!

Follow Us on Instagram